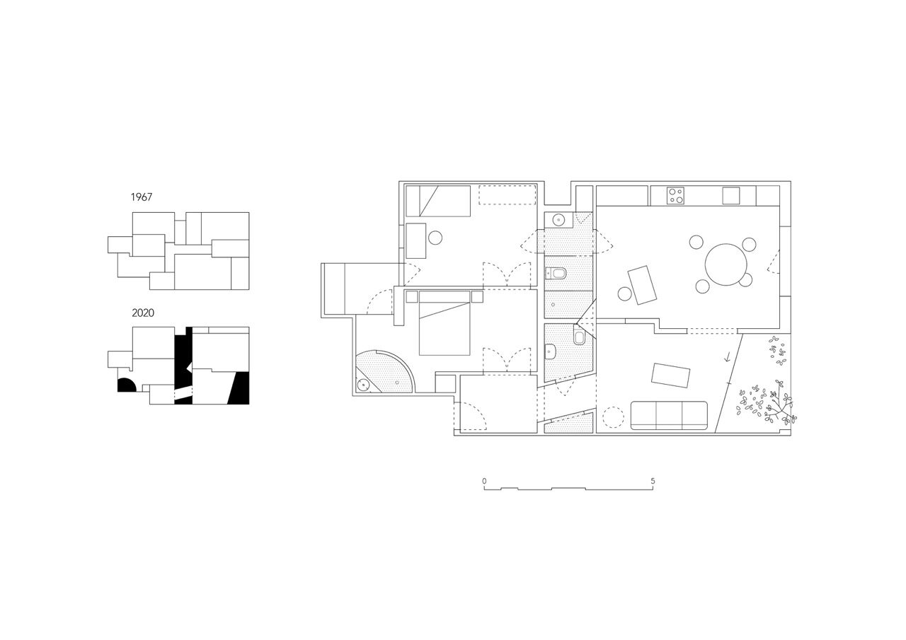
Bajo el mandato del alcalde José María Porcioles (1957-1973) durante régimen franquista, la ciudad de Barcelona vivió una intensa etapa de especulación inmobiliaria que colapsó tanto la periferia cómo el centro de Barcelona. Multitud de nuevos bloques de vivienda capaces de absorber el alud de población del resto de España con tipologías listas para albergar familias numerosas: muchas habitaciones distribuidas por un pasillo.
Tres baños cruzan la estructura original de la casa organizando el resto de espacios sin necesidad de pasillo, repensando la vivienda como una secuencia de habitaciones menos jerárquicas capaces de adaptarse a posibles cambios en la estructura familiar. Con ventanas generosas solo en uno de los costados de la tipología, varias aperturas practicadas a las nuevas piezas permiten acompañar la luz a lo más profundo de la vivienda.







