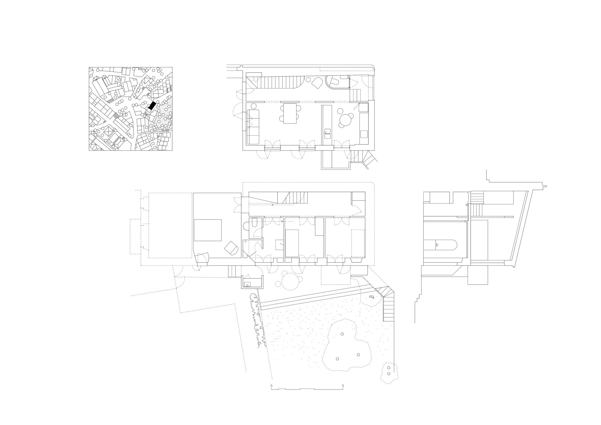
Se nos encarga transformar en vivienda una pequeña edificación de planta rectangular, compuesta por dos niveles desconectados entre sí y dedicada a diversos usos, situada en uno de los vértices del jardín de la casa familiar. El volumen se encuentra adosado a un muro de contención que define el límite entre la parcela y una plaza pública hacia la que no se permite abrir ventanas.
La escasez de fachada será, por tanto, la principal limitación del proyecto, ya que la casa solo podrá iluminarse y ventilar por la fachada sudeste, con escasas aberturas, pero magníficas vistas hacia el mar. Según esta condición, la primera apuesta será transformar esa fachada en un plano mucho más abierto con seis balconeras mirando al jardín.
Sin llegar a tocar la cubierta, una nueva pared, offset de la fachada hacia el interior, divide las plantas en dos
crujías longitudinales, comunicando los espacios principales y los espacios de circulación, servicios y acceso a través de seis puertas de igual dimensión.
Se plantea un nuevo acceso en el único tramo de fachada que da a la calle, en la planta superior, situando en ese nivel, con mejores vista e iluminación natural, el salón y la cocina. Las habitaciones y el baño principal se
organizan en planta baja, conectándose al exterior por una amplia escalinata.






