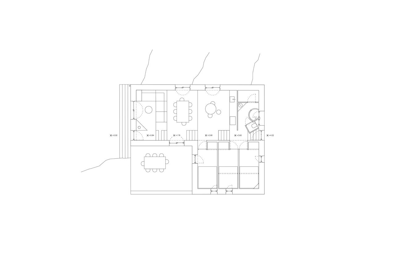
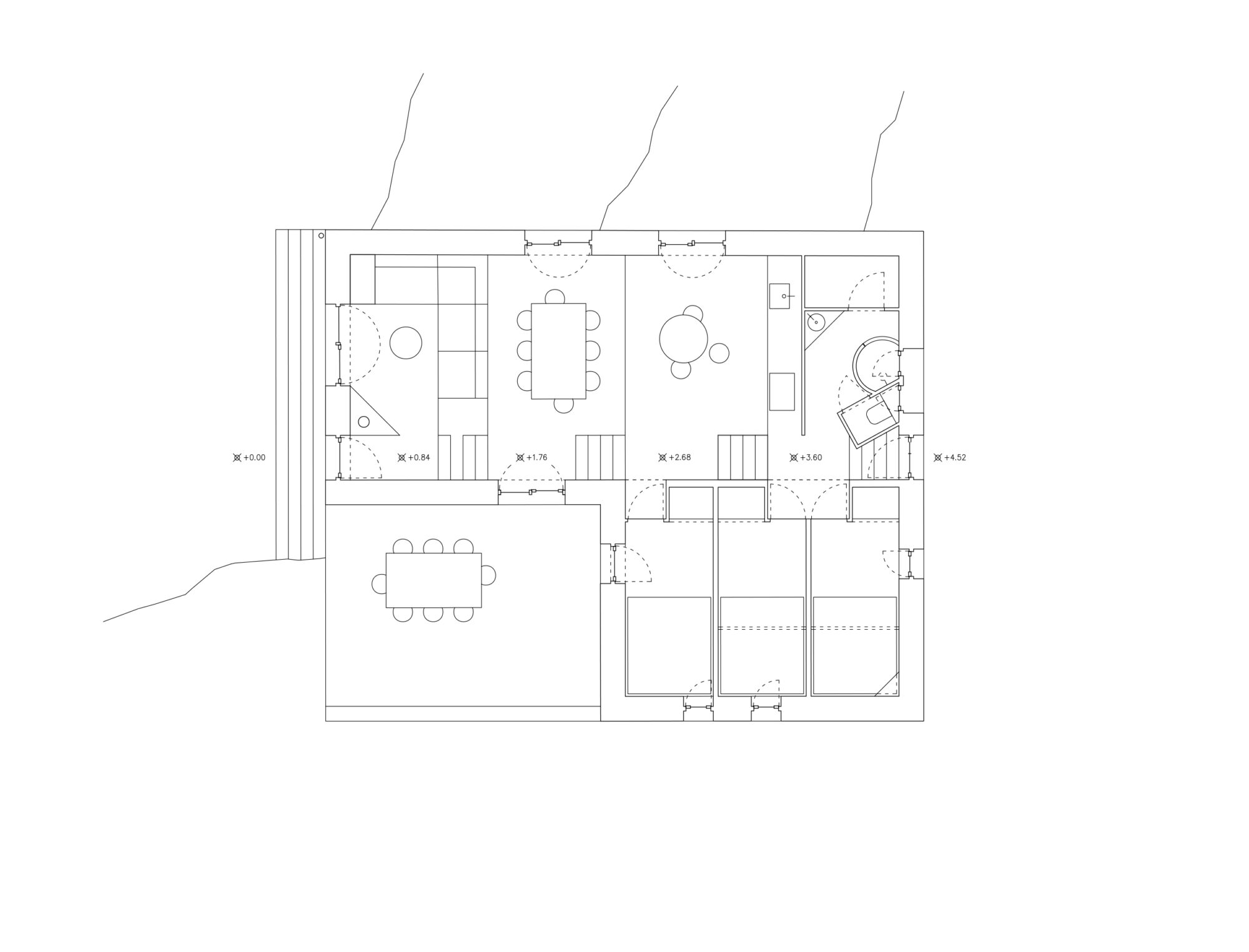
Situado entre bancales de piedra seca, el proyecto de rehabilitación de una pequeña construcción de origen agrícola estira hacia el interior de la casa la condición topográfica de las terrazas de cultivo de olivos y almendros y organiza todos los programas públicos de la casa en un solo espacio escalonado. 

Cubiertas bajo un único techo de igual pendiente que la construcción original, cada actividad ocupa una de las terrazas interiores conectándolas con los exteriores de la casa: el salón con la terraza inferior a sur, el comedor con las terrazas a este, la cocina con las de oeste y los baños y almacenes con la cota superior, abriendo un acceso para cada bancal. 

Una única escalera, que salva regularmente noventa centímetros a cada tramada, cruza la casa de norte a sur y distribuye, en un segundo cuerpo preexistente, las habitaciones/camarote donde acomodar el máximo de habitantes posibles. Tres pequeñas alcobas entre cinco terrazas bajo una misma cubierta.

Cliente: Privado
Arquitectos: OESST
Colaboradores: Joan Ovejero (structures)
Fotografías:
Año: 2025
Lugar: Cabacés, Priorat, Spain
Tipología: Reforma de vivienda
Estado: Construido

Situated among dry-stone terraces, the rehabilitation project of a small agricultural building extends the topographic condition of the olive and almond cultivation terraces into the interior of the house, organizing all public functions of the house within a single stepped space.

Covered under a single roof with the same slope as the original building, each activity occupies one of the interior terraces, connecting them with the exterior spaces of the house: the living room with the lower south terrace, the dining room with the east terraces, the kitchen with the west terraces, and the bathrooms and storage with the upper level, providing an access point for each terrace.

A single staircase, rising ninety centimeters per flight, runs north to south through the house and distributes, within a second preexisting volume, the bedrooms/bunk rooms designed to accommodate the maximum number of inhabitants. Three small alcoves are arranged among five terraces under the same roof.

Client: Private
Architects: OESST
Collaborators: Joan Ovejero (structures)
Photography:
Year: 2025
Location: Cabacés, Priorat, Spain
Typology: Residential renovation
Status: Built