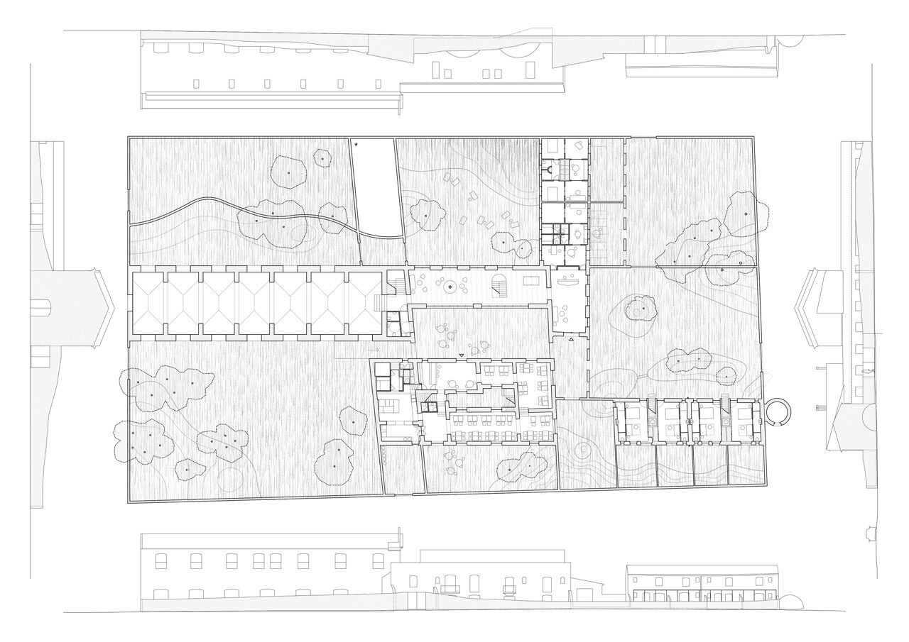
El Mas de Ponç, una importante explotación agrícola del siglo XIX, lo forman un complejo conjunto de edificios con dos unidades diferenciadas y distintos propietarios. La primera cuenta con el edificio de mayor envergadura, un volumen híbrido que contenía un almacén agrícola de grandes dimensiones, la vivienda principal y los alojamientos de los trabajadores, ligado a un conjunto de patios que recogen los espacios exteriores cercanos. La segunda unidad, propiedad de nuestros clientes, es un clúster de construcciones yuxtapuestas sin orden aparente que la forman, entre otros pequeños edificios, la antigua masovería, un molino de aceite y un segundo almacén. El encargo consiste en transformarlos en un pequeño hotel.
Emulando tipológicamente el primer conjunto, proponemos la definición de un nuevo recinto que organizará los edificios objeto del proyecto a través de una serie de patios. El nuevo perímetro construirá un paisaje interior que aislará el conjunto de un entorno cercano de poco valor: la antigua carretera N-340 y las explotaciones superintensivas de olivares, y protegerá los jardines del hotel del envite del mistral, el fuerte viento dominante de la zona. Las nuevas edificaciones que permite incorporar el plan urbanístico que rige el conjunto, extienden algunos de los volúmenes existentes hasta el perímetro, un gran rectángulo de 90 x 50 metros.
El nuevo recinto se organizará desde el patio central existente, donde distribuirá a los visitantes hacia la recepción del hotel y su salón principal (antiguo espacio del molino de aceite) o el restaurante (antigua masovería). Los patios restantes se asociaran, cada uno de ellos, a un programa distinto: el patio de acceso, el patio de los trabadores, el de las habitaciones del edificio de temporeros, el patio de la piscina, completando una matriz de espacios exteriores con paisajes oriundos para un jardín oculto entre plantaciones de olivares.














Cliente: Privado
Arquitectos: OESST
Colaboradores: MARBORIS (paisaje)
Fotografías: OESST (maqueta)
Año: 2020 – 2030
Lugar: Serra del Mar, L’Ametlla de Mar, España
Tipología: Rehabilitación
Estado: En desarrollo
Mas de Ponç, an important 19th-century agricultural estate, consists of a complex set of buildings with two differentiated units and different owners. The first unit contains the largest building—a hybrid volume that housed a large agricultural warehouse, the main residence, and workers’ accommodations—linked to a series of courtyards that organize the nearby exterior spaces. The second unit, owned by our clients, is a cluster of juxtaposed constructions without apparent order, including, among other smaller buildings, the former farmstead, an olive oil mill, and a second warehouse. The commission consists of transforming these into a small hotel.
Emulating the typology of the first complex, we propose defining a new enclosure that will organize the buildings involved in the project through a series of courtyards. The new perimeter will create an interior landscape that isolates the complex from a nearby low-value environment: the old N-340 road and super-intensive olive farms, while protecting the hotel gardens from the mistral, the strong prevailing wind of the area. The new buildings allowed by the urban plan governing the site extend some of the existing volumes to the perimeter, forming a large rectangle of 90 x 50 meters.
The new enclosure will be organized around the existing central courtyard, distributing visitors toward the hotel reception and main lounge (the former olive oil mill) or the restaurant (the former farmstead). The remaining courtyards will each be associated with a distinct program: the access courtyard, the workers’ courtyard, the courtyard of the seasonal workers’ rooms, and the pool courtyard—creating a matrix of exterior spaces with native landscapes for a hidden garden nestled among olive groves.
Client: Private
Architects: OESST
Collaborators: MARBORIS (landscape)
Photography: OESST (model)
Year: 2020 – 2030
Location: Serra del Mar, L’Ametlla de Mar, Spain
Typology: Rehabilitation
Status: In progress
