POCHÉ

Pronunciat amb un accent exagerat a la “e” final, “poche” és un terme arquitectònic francès per a totes les coses que hi ha dins dels murs entre espais.

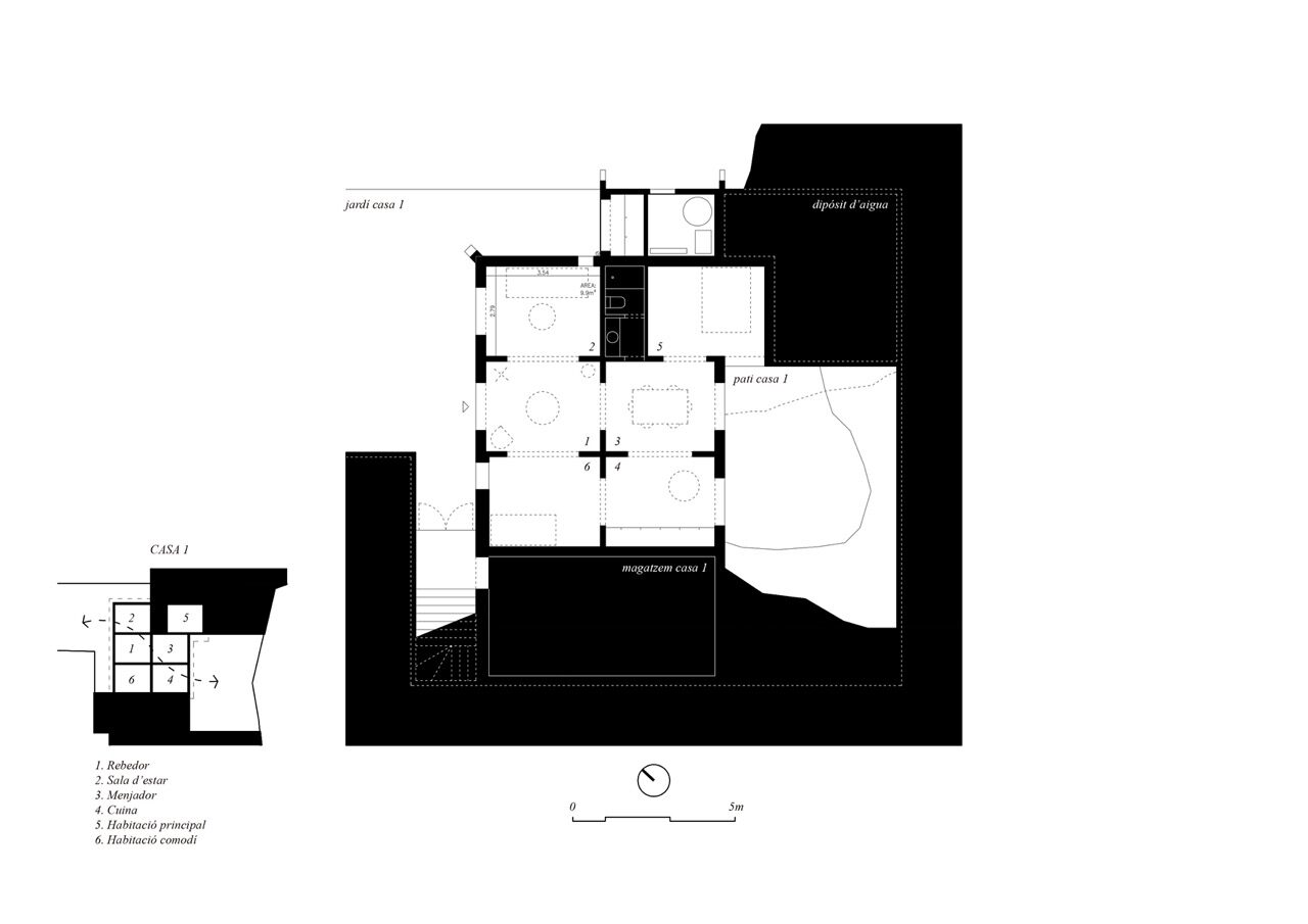
Se nos pide un primer estudio para la rehabilitación de una casa unifamiliar aislada con el objetivo de transformarla en dos viviendas independientes. Construida con muros de carga y situada en un terreno aterrazado a distintos niveles, la casa tiene tres plantas, una de ellas semienterrada, y se organiza en dos crujías con una pared de carga en el centro y cubierta a dos aguas.

La vivienda principal deberá ocupar las dos plantas superiores y la segunda la planta semisótano, cuya crujía
sudeste apenas dispone de aberturas. Uno de los principales problemas que se plantean es resolver el uso
privativo del jardín que rodea la casa, por lo que la primera decisión del proyecto será dividir la parcela en cuatro sectores destinándolos de forma intercalada a cada una de las viviendas. Siguiendo este esquema, se excava un patio que libera la fachada de la crujía semienterrada dotando la casa de una nueva salida al exterior y a la vez garantizando la intimidad sin necesidad de introducir elementos divisorios.

La estructura de las plantas permite organizarlas en seis habitaciones del mismo tamaño, generando un esquema de piezas en enfilada que se repite en los tres niveles. Los espacios de almacenamiento y servicio, así como la chimenea y la escalera, se insertan en la distribución ocupando perímetros, esquinas e intersticios, concibiéndose como un poché que especializa algunas de las habitaciones moldeando a la vez la forma del espacio.

Cliente: Privado
Arquitectos: OESST
Colaboradores:
Fotografías: Raul Ruz (maqueta)
Año: 2023
Lugar: La Floresta, Sant Cugat, España
Tipología: Reforma de vivienda
Estado: No construido