Frente al reto de proyectar una vivienda mínima, nos proponemos actuar en todos los espacios de acuerdo con una misma lógica. Entendiendo el procedimiento que conduce el proyecto como algo continuo: una única estrategia.
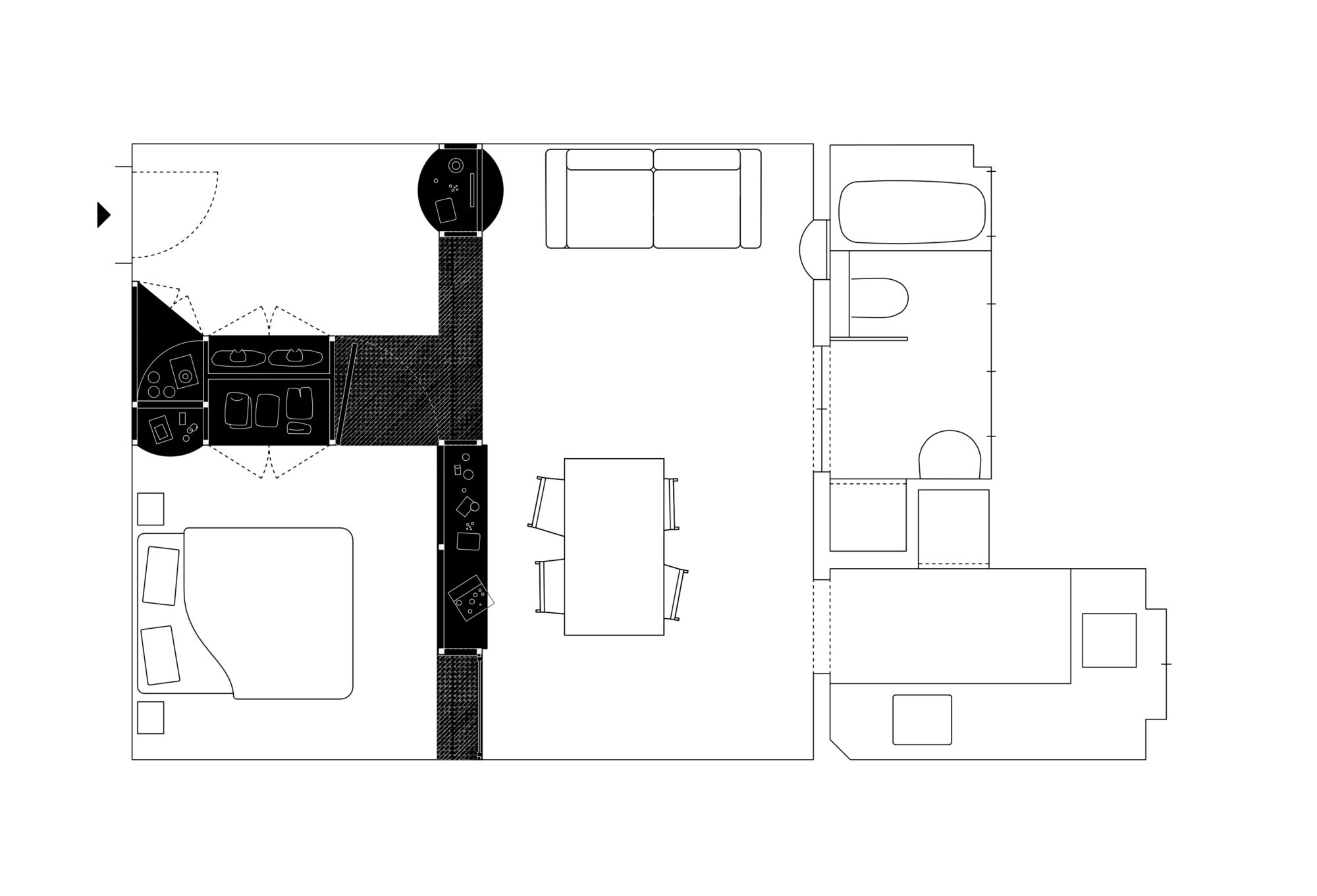
Se nos encarga la rehabilitación de un apartamento de poco más de 40m2. Un dormitorio, un recibidor, una sala de estar, una cocina y un baño. Las soluciones adoptadas en la construcción de la cocina, el espacio más complejo de la casa, dan lugar al ADN que caracteriza todas las acciones del proyecto. Los componentes esenciales de este espacio: las estructuras de almacenaje, el plano de trabajo a 90cm de altura y los alicatados viajan al resto de las habitaciones. Se trata de una construcción voluntariamente incompleta, en parte cerrada por cortinas que dejan entrever lo que esconden.
La sala de estar, el dormitorio y el recibidor no se separan por tabiques sino que se distribuyen a partir de un solo gran mueble que incorpora diversos tipos de espacios de almacenaje y aberturas. Un entramado de listones de madera de 45x45mm, construido a partir pequeñas variaciones de un mismo detalle, ayuda a articular todos los encuentros entre los distintos materiales del objeto conformando sus aristas.
Cada habitación de la casa, incluido el baño, situado en la antigua galería, está coronada por una pequeña capilla, con un sobre de mármol y una serie de espacios de almacenaje. Un rincón específico que se dedica a una determinada acción cotidiana: llegar-irse, vestirse-desvestirse, cocinar, asearse, trabajar.














Cliente: Privado
Arquitectos: OESST
Colaboradores: Joan Ovejero (estructura)
Fotografías: José Hevia + Raúl Ruz (maqueta)
Año: 2018
Lugar: Gracia, Barcelona
Tipología: Rehabilitación vivienda
Estado: Construido
Faced with the challenge of designing a minimal dwelling, we aim to operate across all spaces according to a single logic, understanding the design process as continuous: one unified strategy.
We were commissioned to rehabilitate an apartment of just over 40 m²: a bedroom, an entrance hall, a living room, a kitchen, and a bathroom. The solutions adopted in the construction of the kitchen—the most complex space in the house—give rise to the DNA that characterizes all actions of the project. The essential components of this space—the storage structures, the 90 cm high worktop, and the tiling—travel across the other rooms. It is a deliberately incomplete construction, partially closed by curtains that allow glimpses of what lies behind.
The living room, bedroom, and entrance hall are not separated by partitions but are organized around a single large piece of furniture that incorporates various types of storage and openings. A lattice of 45×45 mm wooden slats, built with small variations of the same detail, helps articulate all the intersections between the different materials of the object, forming its edges.
Each room in the house, including the bathroom located in the former gallery, is crowned by a small “chapel,” featuring a marble top and a series of storage spaces. Each corner is dedicated to a specific daily action: arriving-leaving, dressing-undressing, cooking, washing, or working.
Client: Private
Architects: OESST
Collaborators: Joan Ovejero (structure)
Photography: José Hevia + Raúl Ruz (model)
Year: 2018
Location: Gracia, Barcelona
Typology: Residential renovation
Status: Built
