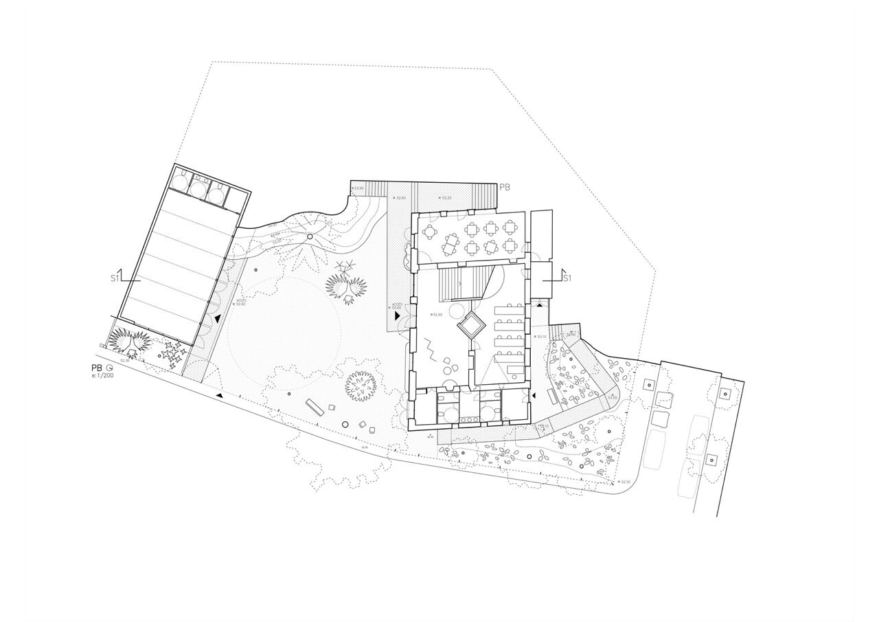
Memoria de la antigua finca agrícola que fue, Can Garcini es hoy un pequeño oasis en el denso tejido urbano del Guinardó. El proyecto, más allá de la recuperación, ampliación i programación del antiguo edificio, ha de conectar ese verde con la ciudad. Situado al final del Passatge de Llívia, eje cívico del barrio, se reorganiza el acceso con una entrada principal en la cota superior, conectada mediante una escalinata con la planta baja. La parte posterior del jardín deja de ser un ‘detrás’ para acoger un nuevo acceso, abierto hacia una futura plaza en la fachada norte.
La intervención interior se basa en la estructura original de cuatro crujías, con las salas organizadas alrededor del ascensor central, lo que reduce recorridos y elimina pasillos. Junto a la masía y la torre existentes, la ampliación se plantea como un nuevo volumen construido dentro del conjunto: un cubierto. Bajo él, el programa se organiza en dos niveles independientes con una distribución similar. Dos salas diáfanas, accesibles desde cada cota del jardín: la sala de actos en planta baja, pensada como una extensión del exterior, y el aula equipada en la planta superior, que también puede funcionar como sala polivalente.
El jardín se divide en dos plataformas horizontales. La zona inferior es una plaza soleada de sauló; la superior, parcialmente pavimentada, funciona como paseo entre huertos y árboles con sombra. En cuanto a la vegetación, se mantiene el carácter ecléctico del jardín original, incorporando especies autóctonas como cipreses y fresnos junto con especies adaptadas como la palmera canaria o la tipuana. El nuevo jardín se estructura en cuatro zonas: un talud mediterráneo, un huerto aromático, una zona húmeda con flora acuática, y un bosque florido junto a la rampa, con la variedad de crisantemo blanco “Gracieta”, creada por los antiguos floristas que vivían en la finca.
The memory of the former agricultural estate that it once was, Can Garcini is today a small oasis within the dense urban fabric of Guinardó. The project, beyond the restoration, expansion, and programming of the old building, aims to connect this green space with the city. Located at the end of Passatge de Llívia, the neighborhood’s civic axis, the access is reorganized with a main entrance at the upper level, connected to the ground floor via a staircase. The rear part of the garden ceases to be a ‘back’ area and becomes a new entrance, opening toward a future plaza on the north façade.
The interior intervention is based on the original four-bay structure, with rooms organized around the central elevator, reducing circulation and eliminating corridors. Adjacent to the existing farmhouse and tower, the expansion is conceived as a new volume built within the complex: a covered structure. Beneath it, the program is arranged over two independent levels with a similar layout. Two open-plan rooms are accessible from each garden level: the event hall on the ground floor, designed as an extension of the outdoors, and the equipped classroom on the upper floor, which can also function as a multipurpose room.
The garden is divided into two horizontal terraces. The lower area is a sunny gravel plaza; the upper terrace, partially paved, serves as a walkway among orchards and shaded trees. Regarding vegetation, the eclectic character of the original garden is preserved, incorporating native species such as cypresses and ash trees alongside adapted species like Canary Island palms and tipuana trees. The new garden is structured into four areas: a Mediterranean slope, an aromatic orchard, a wet area with aquatic plants, and a flowering grove along the ramp, featuring the white chrysanthemum variety “Gracieta,” created by the former florists who lived on the estate.