La mesa es una página en blanco. Una superficie desprovista de condiciones que contiene, estáticos, tantos escenarios como elementos se dispongan sobre ella. Un plano para la arquitectura de los objetos y un campo de juego para las manos. El centro de la casa.
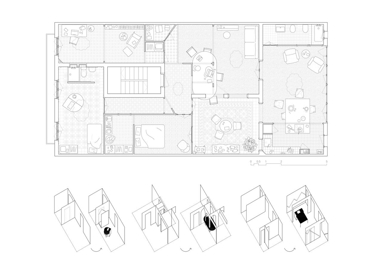
Se nos encarga la rehabilitación de una vivienda de 140 m2 ubicada en la Calle Verdi del barrio de Gracia de Barcelona. El programa se resume en tres zonas diferenciadas: el área de los dormitorios, dando a la calle; el área que contiene la cocina, el comedor y el baño principal, dando a fachada del patio interior; y el área central de la vivienda, para cuyos espacios no se especifica ningún programa concreto.
La dimensión de la vivienda permite proyectar uno de los dormitorios como una pieza independiente con un baño y una cocina adicionales. Esta circunstancia, junto a la demanda de reforma de la cocina y el baño existentes, invita a definir el proyecto a partir de dos elementos primordiales: alicatados – un paisaje – y superficies horizontales – unas mesas.
En la distribución original, la cual apenas quiere alterarse, los espacios centrales de la vivienda giran en torno a una pieza sin ningún valor aparente, compuesta por un armario y un pequeño distribuidor. La apuesta será abrirla a la luz practicando una nueva familia de aberturas que permitirá a las habitaciones que la rodean mirarse entre sí transformándose en un rosario de salas públicas.
Concebida como una infraestructura más que como un mueble, la mesa se convierte en protagonista de cada una de las tres zonas que componen la casa.











